Den Haag
Adelheidstraat 1
€ 2.150 p.m
-
97 m²
-
Benedenwoning
-
3 kamers
Omschrijving
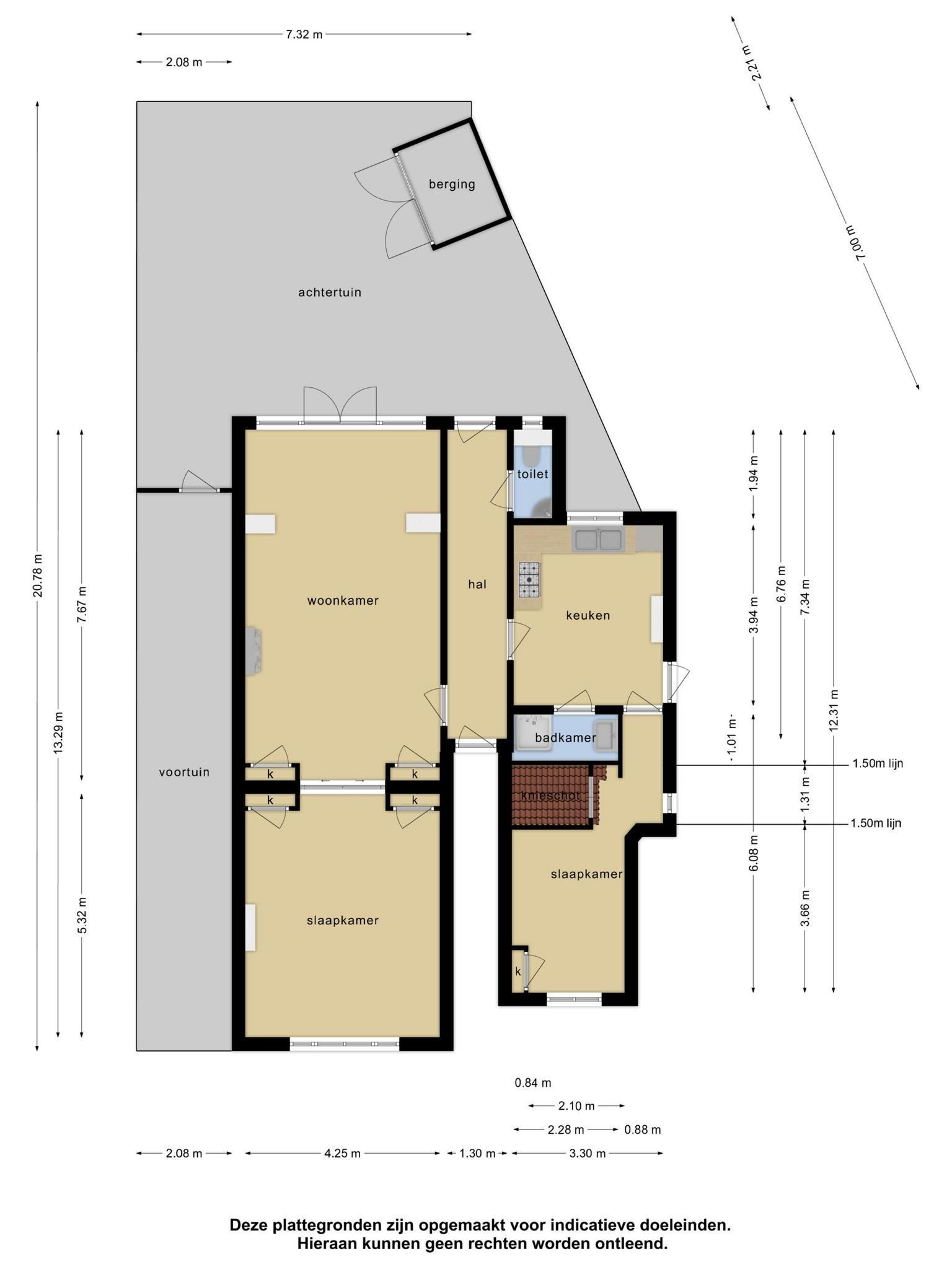
English version see below LET OP: OPEN HUIS OP DINSDAG 03 JUNI TUSSEN 16:00-16:30 UUR. AANMELDEN IS NIET NODIG. Super STADS WONEN in een STATIG VRIJSTAAND PAND met zonnige ACHTERTUIN. Waar vind je dat? Hier wonen is echt een spektakel! In dit mooie, vrijstaande pand vind je op de BEGANE GROND het appartement van ca. 97m2. Het heeft een ruime woonkamer en-suite en is voorzien van prachtige authentieke details zoals ornamenten plafonds, originele marmeren schouwen, vaste kasten en visgraat parket! Het appartement heeft een/twee ruime slaapkamer(s), een gezellige woonkeuken met inbouwapparatuur en een moderne badkamer met inloopdouche. De mooie afwerking met leuke...
Langezaal Makelaars
Kenmerken
Overdracht
Bouw
Opervlakte en inhoud
Indeling
Energie
Locatie




