Den Haag
Altingstraat 157
€ 325.000 k.k
-
65 m²
-
Portiekwoning
-
4 kamers
Omschrijving
English text see below Start hier jouw woonavontuur en wordt dit jouw thuis? LET OP! Uniek in Bezuidenhout, dit appartement heeft een eigen berging! Dit fijne 4-kamer appartement op de eerste verdieping voelt als thuiskomen. Met 2 slaapkamers, een ruime badkamer, heerlijk balkon op de ochtend/middagzon, moderne open keuken, maar ook de sfeervolle stijldetails geven dit appartement het ultieme wooncomfort! De locatie is perfect! De gezellige winkelstraat "Theresiastraat" is om de hoek gelegen en voorzien van alle winkels voor de dagelijkse boodschappen en vele restaurantjes en koffiezaakjes. Liever de stad in? Het centrum van Den Haag is binnen handbereik. Liever de...
Langezaal Makelaars
Kenmerken
Overdracht
Bouw
Opervlakte en inhoud
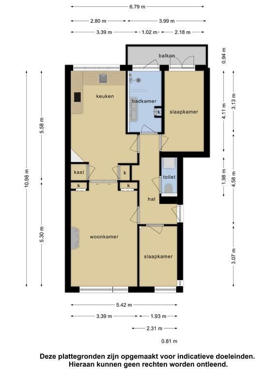
Indeling
Energie
Enthousiast geworden?
Maak dan snel een afspraak voor een vrijblijvende bezichtiging van Altingstraat 157, Den Haag
Bezichtiging inplannen
Locatie



