Den Haag
Carel Reinierszkade 31
€ 2.500 p.m
-
151 m²
-
Bovenwoning
-
7 kamers
Omschrijving
English version see below Extraordinary luxury! Inpakken, verhuizen & fijn thuis komen. Dit super trendy 7-kamer, recent prachtig gerenoveerde dubbel bovenhuis in één van de populaire straten van Bezuidenhout mag je echt niet missen!! Deze woning is echt van alle denkbare luxe voorzien en heeft een frisse look met een praktische indeling. De super lichte woon-/eetkamer met jaren '30 ensuite separatie zorgen voor fijn wooncomfort en de moderne open keuken is voorzien van alle wenselijke inbouwapparatuur. De badkamer met ligbad, inloopdouche, moderne wastafel(meubel) en designradiator is net als de keuken in high quality afgewerkt. En met maar liefst vijf(!) ruime slaapkamers heb...
Langezaal Makelaars
Kenmerken
Overdracht
Bouw
Opervlakte en inhoud
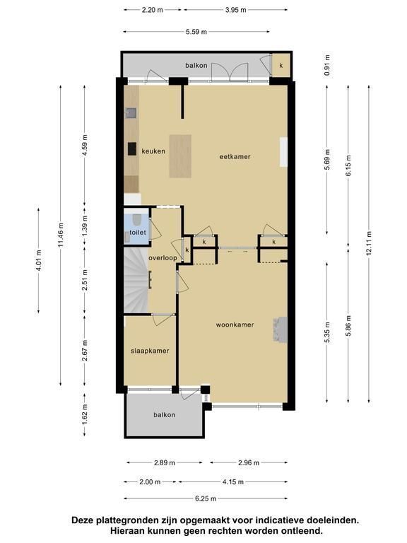
Indeling
Energie
Locatie




