Den Haag
De Werf 7-B
€ 1.500 p.m
-
90 m²
Omschrijving
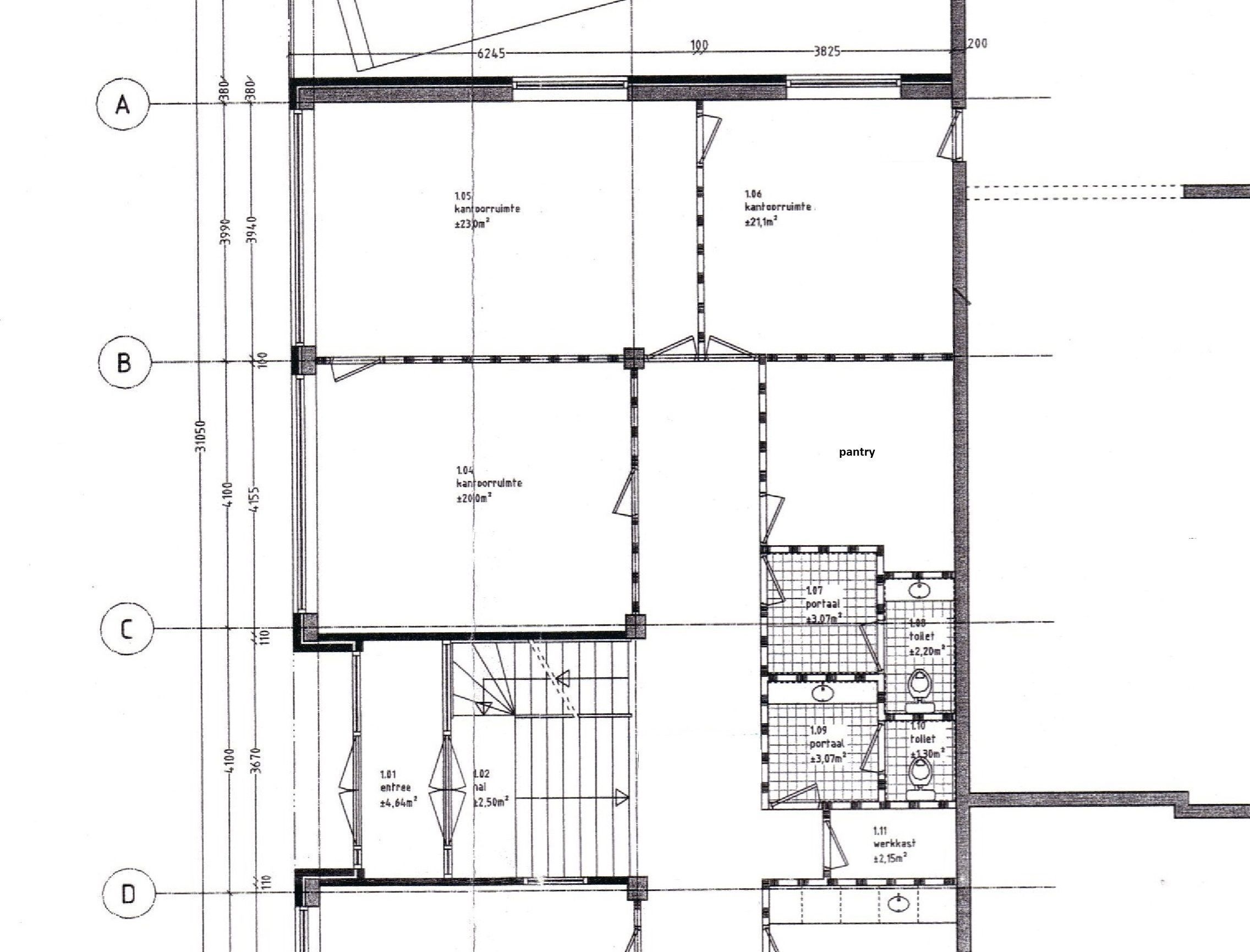
TURN KEY KANTOORUNIT GELEGEN OP BEGANE GROND IN REPRESENTATIEF KLEINSCHALIG BEDRIJFSVERZAMELGEBOUW. Het door eigenaar zeer goed onderhouden gebouw heeft een mooie ligging aan een brede straat en bestaat uit 4 kantoorunits waarvan op korte termijn unit 7B met totaal ca. 90 m² v.v.o. kantoorruimte voor verhuur beschikbaar komt. Op straatniveau heeft het pand een fraaie afgesloten entree met trappenhuis bestaande uit staal met hard houten traptreden met ruime overloop op de verdiepingen. Alle vertrekken zijn voorzien van nieuw schilderwerk en keurige vloerbedekking en kunnen verwarmd en gekoeld worden middels een warmtepomp. OPLEVERINGSNIVEAU De kantoorruimte wordt opgeleverd in huidige staat en...
Langezaal Makelaars
Kenmerken
Overdracht
Bouw
Opervlakte en inhoud
Indeling
Energie
Locatie




