Den Haag
Juliana van Stolberglaan 339
€ 275.000 k.k
-
80 m²
-
Portiekwoning
-
4 kamers
Omschrijving
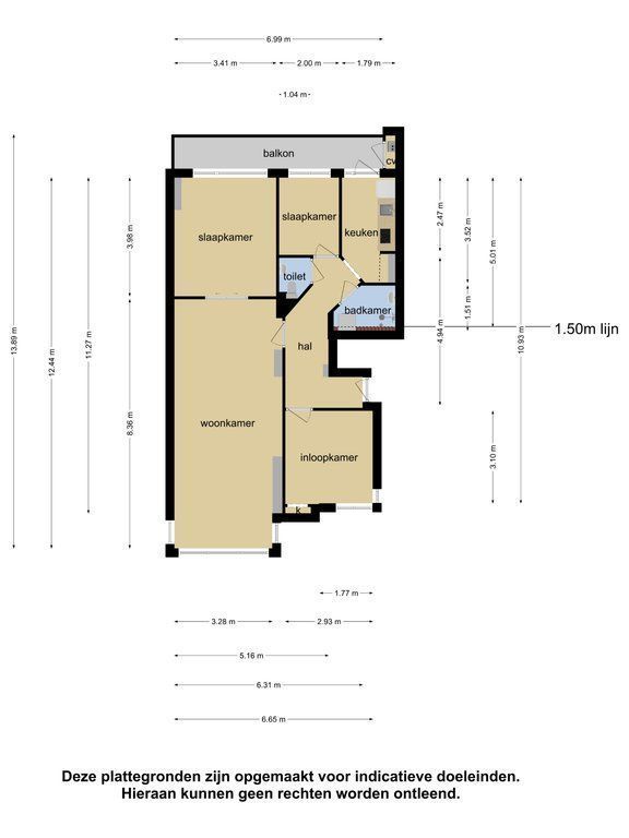
Alles wat je nodig hebt; een perfecte mix met een moderne touche! Deze woning heeft drie slaapkamers en is een heerlijk en licht plekje waar jij je snel thuis zult voelen. De woning is strak afgewerkt, moderne keuken (vernieuwd in 2016) balkon over de volle breedte op het zuidoosten en nette badkamer. Wonen in Bezuidenhout betekent centraal wonen, binnen enkele minuten zit u op de snelweg richting Amsterdam, Rotterdam en Utrecht! Wilt u toch liever de trein, tram of bus pakken? Station Laan van NOI is op loopafstand en de tramhalte is om de hoek. En wat dacht u van...
Langezaal Makelaars
Kenmerken
Overdracht
Bouw
Opervlakte en inhoud
Indeling
Energie
Enthousiast geworden?
Maak dan snel een afspraak voor een vrijblijvende bezichtiging van Juliana van Stolberglaan 339, Den Haag
Bezichtiging inplannen
Locatie



