Den Haag
Koningin Marialaan 21R
€ 725.000 k.k
-
127 m²
-
Tussenverdieping
-
4 kamers
Omschrijving
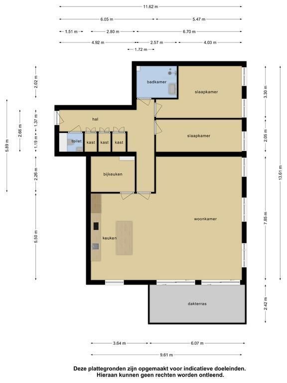
Vorstelijk wonen op de Koningin Marialaan in nieuwbouw (2021) appartementencomplex "De Lodewijk"! Heerlijk en comfortabel wonen in dit ruime 3/4-kamer HOEK-appartement (127m2) dat is gelegen op de vierde verdieping en voorzien is van een eigen parkeerplaats in de parkeergarage (parkeerkelder) en een aparte berging op de begane grond. Het appartement is hoogwaardig afgewerkt en heeft een open keuken met uitgebreid werkeiland en coffee corner, moderne badkamer, 2 slaapkamers en fraai uitzicht op de Koningin Marialaan en het Juliana van Stolberg monument. Er is een mogelijkheid om een derde slaapkamer te creëren. De Lodewijk is een duurzaam en kleinschalig wooncomplex aan...
Langezaal Makelaars
Kenmerken
Overdracht
Bouw
Opervlakte en inhoud
Indeling
Energie
Garage
Enthousiast geworden?
Maak dan snel een afspraak voor een vrijblijvende bezichtiging van Koningin Marialaan 21R, Den Haag
Bezichtiging inplannen
Locatie



