Den Haag
Laan van Meerdervoort 92-M
€ 1.150 p.m
-
55 m²
-
Penthouse
-
2 kamers
Omschrijving
English version see below CITY CENTRAL ALERT! Are you looking for an amazing PENTHOUSE?! This is yours! LUXUEUS WONEN aan de langste laan van Den Haag en en ook nog eens midden in het Centrum met een fantastisch uitzicht op de stad. Dit is perfection at its finest! Het voormalig kantoorpand is in 2017 VOLLEDIG GERENOVEERD en omgetoverd tot appartementencomplex met 11 luxe woningen. De 2-kamer appartementen zijn uniek en super licht door de enorme raampartijen. De top lokatie, alle mogelijke luxe, de spiksplinternieuwe keuken en badkamer, handige inbouwkasten en last but not least het zonneterras over de hele breedte van...
Langezaal Makelaars
Kenmerken
Overdracht
Bouw
Opervlakte en inhoud
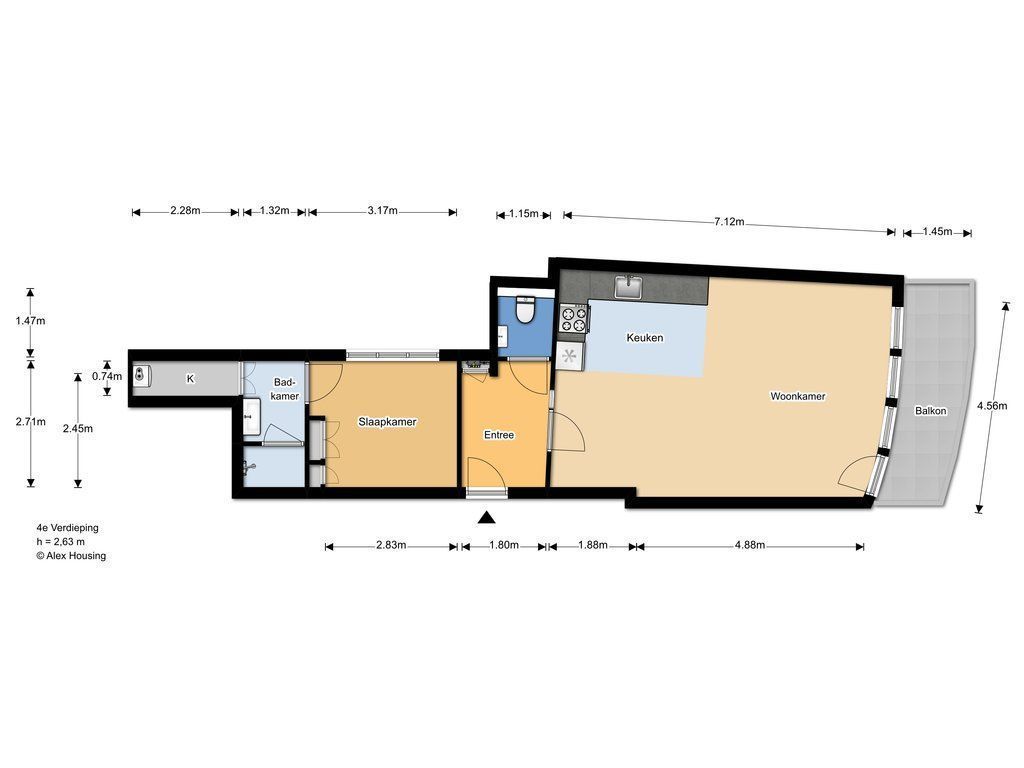
Indeling
Energie
Locatie




