Rijswijk
Laan van Zuid Hoorn 41
€ 800.000 k.k
-
260 m²
-
Beneden plus bovenwoning
-
8 kamers
Omschrijving
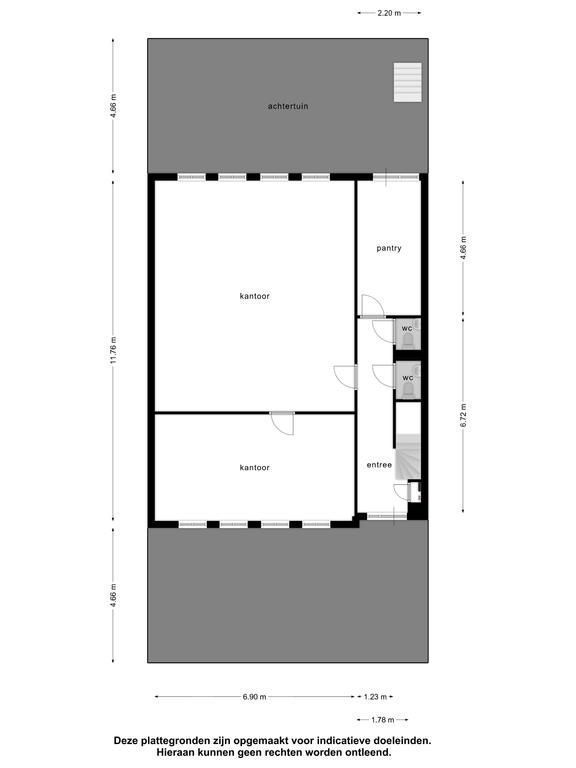
KANTOORVILLA MET WOONBESTEMMING Deze prachtige kantoorvilla van ca. 260 m² v.v.o. groot is o.a. door aanleg van een badkamer geschikt te maken voor gebruik als woon-werkpand waarvoor reeds toestemming door gemeente is verleend. Het pand is ingedeeld in verschillende kamers d.m.v. systeemwanden waardoor de indeling relatief eenvoudig kan worden aangepast Ideaal voor een kantoor/praktijk aan huis met aan achterzijde een fantastisch mooi uitzicht over het onlangs aangelegde Molenvlietpark. Het object beschikt over 5 parkeerplaatsen aan voorzijde van het pand en heeft aan de achterzijde (Noord-Oost) een ruime achtertuin van ca. 134 m² waarvan ca. 52 m² betegeld terras en op...
Langezaal Makelaars
Kenmerken
Overdracht
Bouw
Opervlakte en inhoud
Indeling
Energie
Garage
Enthousiast geworden?
Maak dan snel een afspraak voor een vrijblijvende bezichtiging van Laan van Zuid Hoorn 41, Rijswijk
Bezichtiging inplannen
Locatie



