Rijswijk
Laan van Zuid Hoorn 41BG
€ 1.500 p.m
-
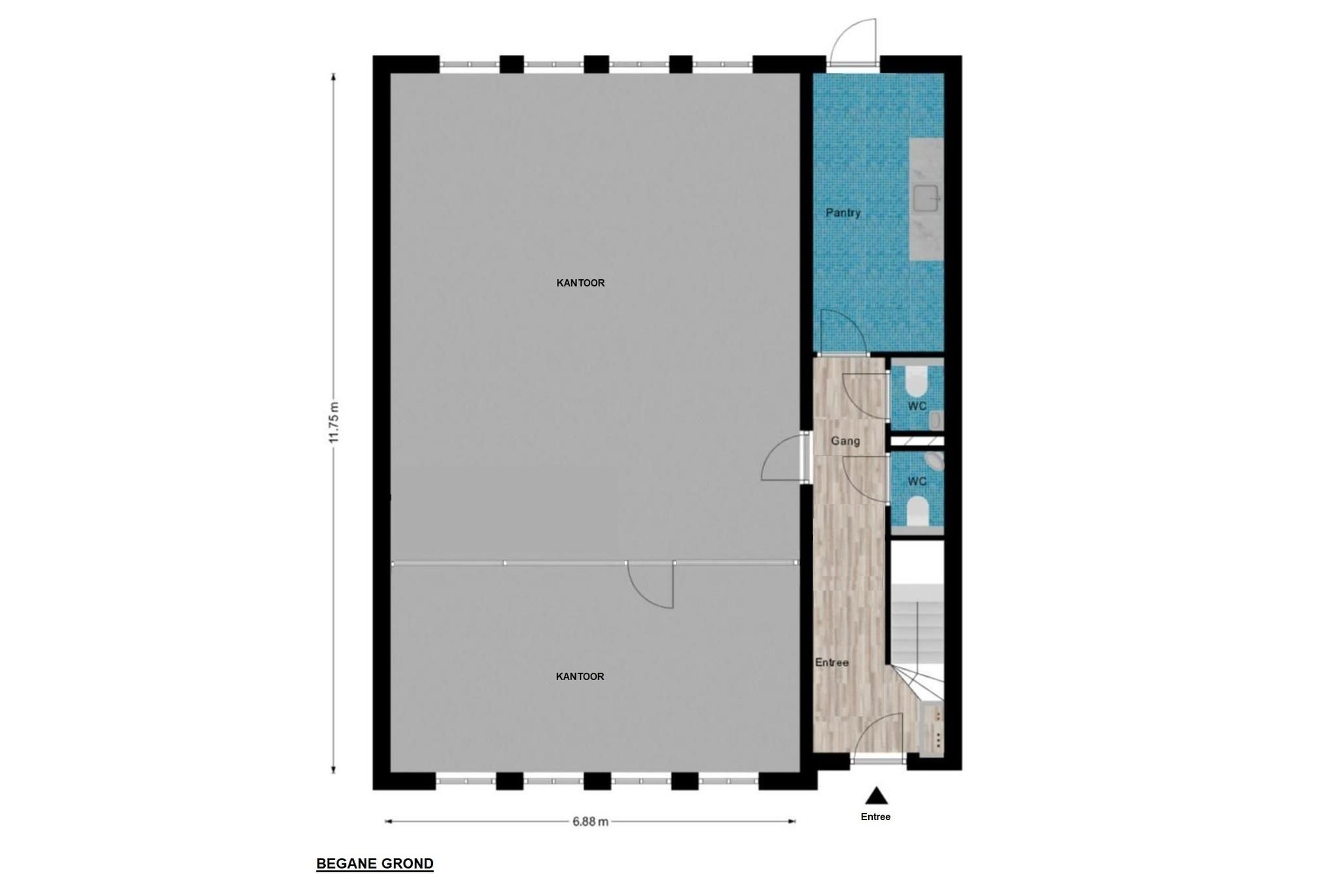
97 m²
Omschrijving
Het betreft de begane grond van ca. 97 m² VVO van een fraaie ‘turn-key’ kantoorvilla met 2 parkeerplaatsen, gelegen op Businesspark 'Hoornwijck' in project ‘Hof van Hoornwijck’ (2001) te Rijswijk. ‘Hof van Hoornwijck’ onderscheidt zich van de grotere kantorenparken door haar kleinschaligheid en wordt gekenmerkt door haar fraaie klassieke Engelse bouwstijl. Het object heeft aan de achterzijde de beschikking over een eigen achtertuin met uitzicht over het onlangs aangelegde Molenvlietpark. ADRES Laan van Zuid Hoorn 41 , 2289 DC RIJSWIJK. METRAGE De kantoorruimte omvat totaal ca. 97 m² Verhuurbaar Vloer Oppervlak (VVO) inclusief aandeel gemeenschappelijke ruimten , gelegen op begane grond. PARKEREN Er zijn 2...
Langezaal Makelaars
Kenmerken
Overdracht
Bouw
Opervlakte en inhoud
Indeling
Energie
Locatie




