Den Haag
Mariastraat 108
€ 350.000 k.k
-
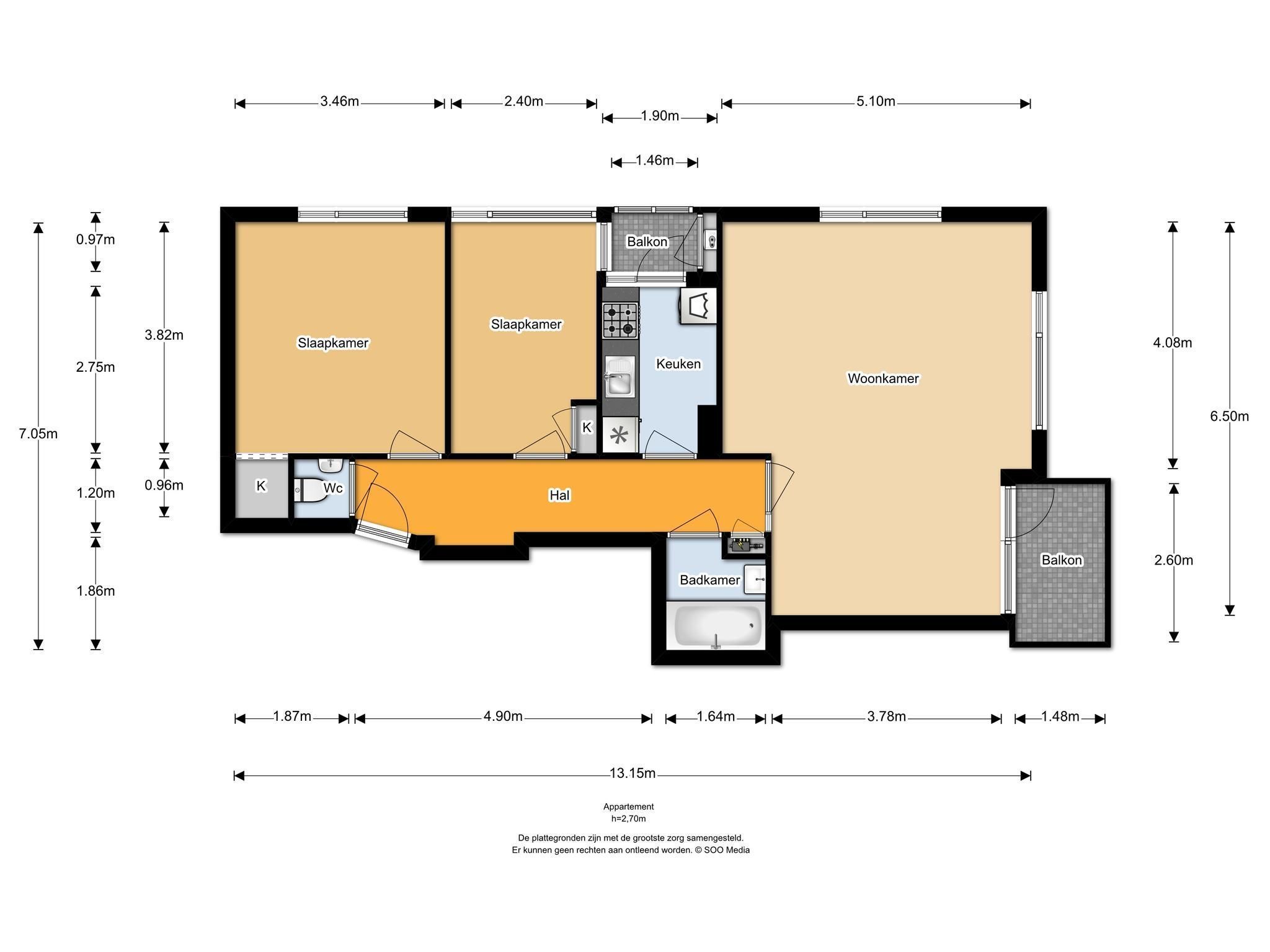
79 m²
-
Portiekflat
-
3 kamers
Omschrijving
Ben jij op zoek naar een fijne plek in het hart van het levendige Bezuidenhout? Dan is dit misschien wel jouw nieuwe thuis! Deze fijne woning uit 1957 biedt 79m² aan woonoppervlakte, verdeeld over 3 kamers, waaronder 2 slaapkamers – ideaal voor starters, een stel of iemand die gewoon lekker centraal wil wonen. De ligging? Heerlijk. Je woont hier op loopafstand van alles wat Den Haag zo leuk maakt: winkels, gezellige koffietentjes en restaurantjes in de Theresiastraat of het bruisende stadscentrum, en het openbaar vervoer om de hoek. Hier ligt de stad aan je voeten. Binnen is het licht en is...
Langezaal Makelaars
Kenmerken
Overdracht
Bouw
Opervlakte en inhoud
Indeling
Energie
Enthousiast geworden?
Maak dan snel een afspraak voor een vrijblijvende bezichtiging van Mariastraat 108, Den Haag
Bezichtiging inplannen
Locatie



