Den Haag
Olgaland 27
€ 715.000 k.k
-
200 m²
-
Eengezinswoning
-
339 m²
-
9 kamers
Omschrijving
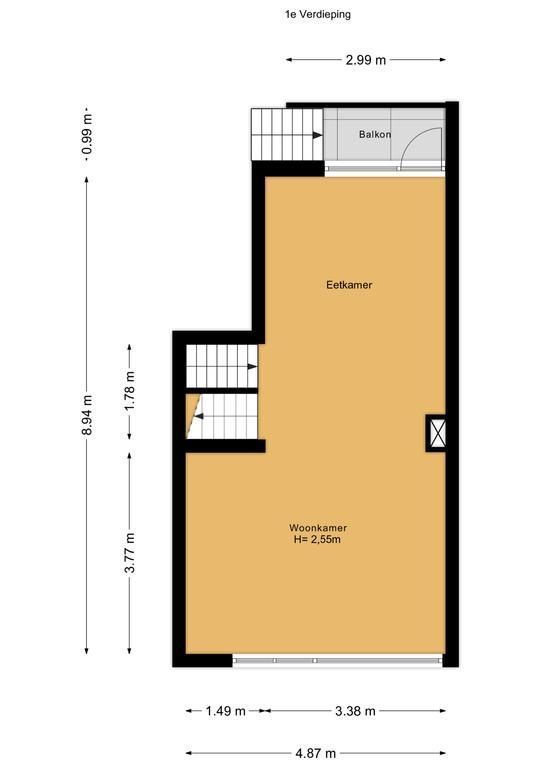
Unieke kans! Royale splitlevel HOEK-herenhuis van ca. 200m2 op een riant perceel van ca. 339 m2 met heerlijke tuin op het op het zuiden. De woning heeft een grote voortuin met oprit, is gelegen op EIGEN GROND, ENERGIELABEL 'C'. De woning heeft zes ruime slaapkamers, ideaal voor een gezin of als u gasten wilt ontvangen. Ook is er een benedenverdieping die heel goed als thuiskantoor of praktijk ruimte kan worden gebruikt. Olgaland is een brede, groene en vooral rustige straat met aan weerszijde grote herenhuizen. Wonen in Mariahoeve betekent centraal wonen in een groene en rustig omgeving. Binnen “no...
Langezaal Makelaars
Kenmerken
Overdracht
Bouw
Opervlakte en inhoud
Indeling
Energie
Enthousiast geworden?
Maak dan snel een afspraak voor een vrijblijvende bezichtiging van Olgaland 27, Den Haag
Bezichtiging inplannen
Locatie



