Delft
Phoenixstraat 2E
€ 1.750 p.m
-
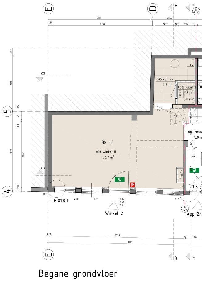
38 m²
Omschrijving
ONDERNEMERS GEZOCHT VOOR ZICHTLOCATIE CENTRUM DELFT Deze volledig gerenoveerd winkelruimte van ca. 38 m² v.v.o. is gelegen in het aanloopgebied van de historische stadskern van Delft met haar grote verscheidenheid aan winkels, horecagelegenheden en bezienswaardigheden. Nabijgelegen winkels zijn o.a. Spar supermarkt, Domino’s Pizza, Johnny’s Burger Co. en diverse andere horecagelegenheden. De Phoenixsstraat vormt samen met de karakteristieke Binnenwatersloot de belangrijkste toegang tot de binnenstad met dagelijks veel passanten. Door de kenmerkende grachten en historische panden met beeldbepalende gevels heeft het gebied een grote aantrekkingskracht op winkelend publiek. Zeer gunstig gelegen ten opzichte van NS-station Delft en nabijgelegen parkeergarage waardoor de locatie uitstekend bereikbaar is met...
Langezaal Makelaars
Kenmerken
Overdracht
Bouw
Opervlakte en inhoud
Indeling
Energie
Locatie




