Voorburg
Populierendreef 968B
€ 1.650 p.m
-
290 m²
Omschrijving
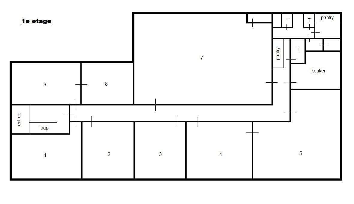
OOK TE GEBRUIKEN ALS (BEDRIJFS-)WONING!! Deze functionele kantoorruimte van is gelegen op de 1e ETAGE en is te bereiken via de trap in de gezamenlijke entree aan de voorzijde van het pand. Het totale gebruiksoppervlak is ca. 290 m² v.v.o en is verdeeld over verschillende kantoorkamers. De grotere kantoorruimte van ca. 80 m² v.v.o. kan ook ingezet worden als ruimte voor conferenties, cursussen en andere bijeenkomsten. De etage beschikt over 3 toiletten, 2 pantry’s en een ruime keuken en voor het pand zijn op eigen terrein in totaal 2 parkeerplaatsen aanwezig. INDELING De kantoorruimte omvat totaal ca. 290 m² v.v.o. en is als volgt verdeeld: 1e...
Langezaal Makelaars
Kenmerken
Overdracht
Bouw
Opervlakte en inhoud
Indeling
Energie
Locatie




