Den Haag
Prinses Mariestraat 17/ 19
€ 1.075.000 k.k
Omschrijving
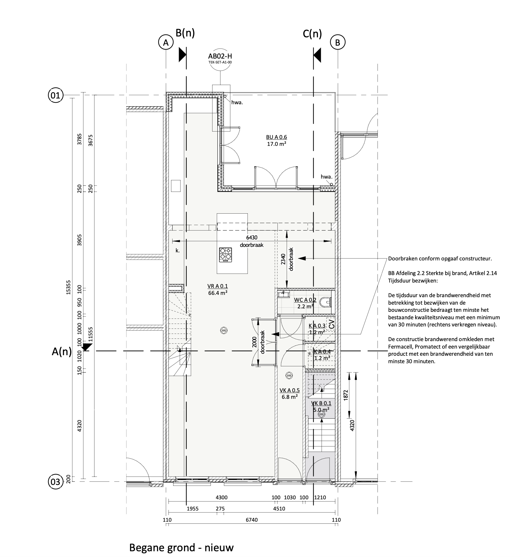
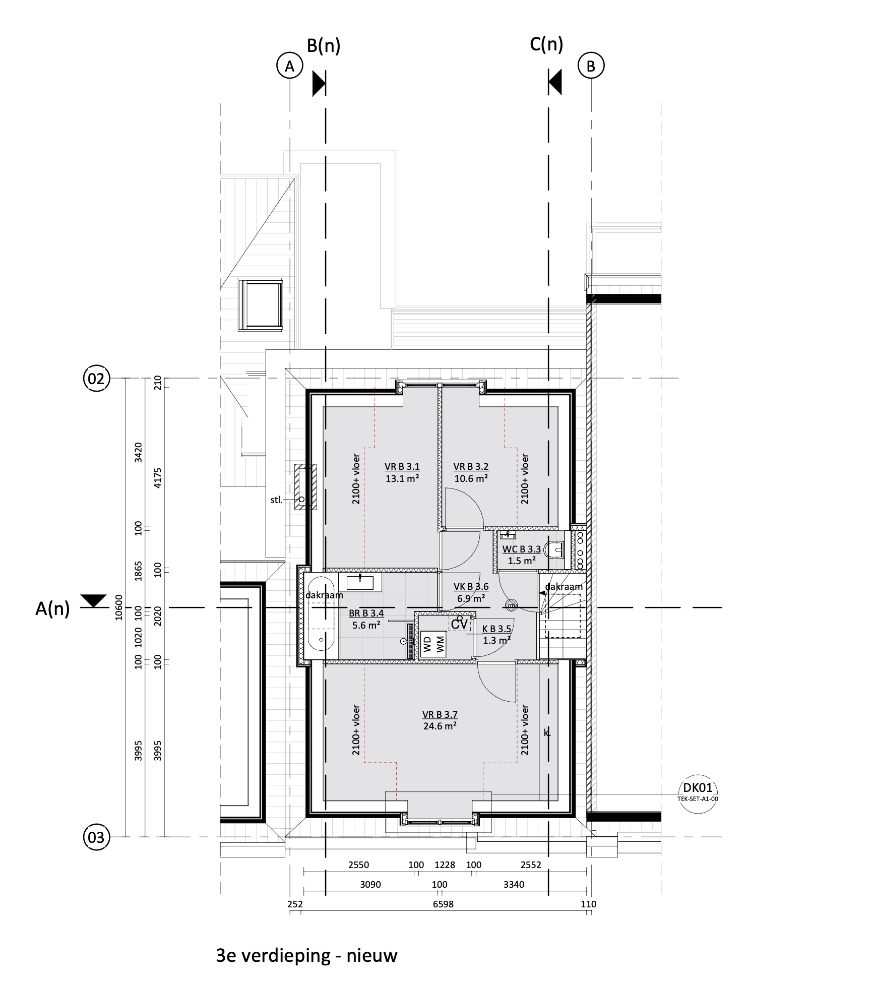
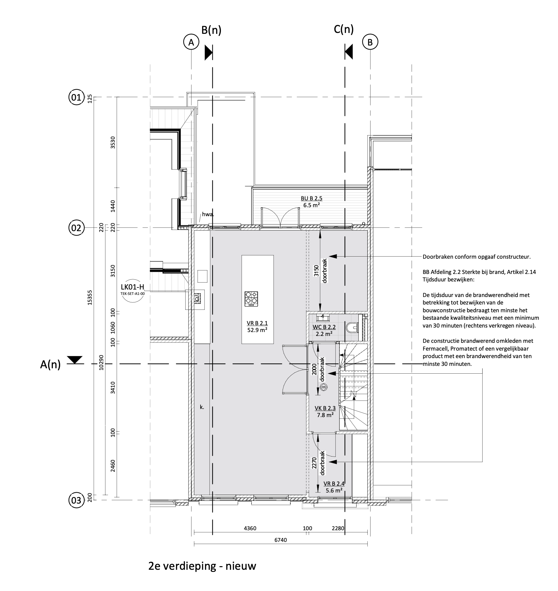
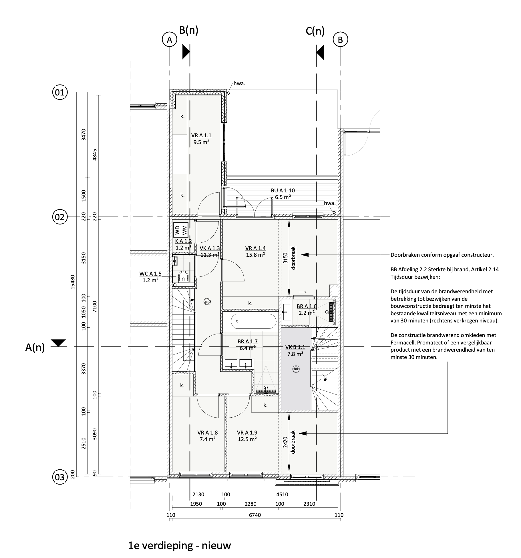
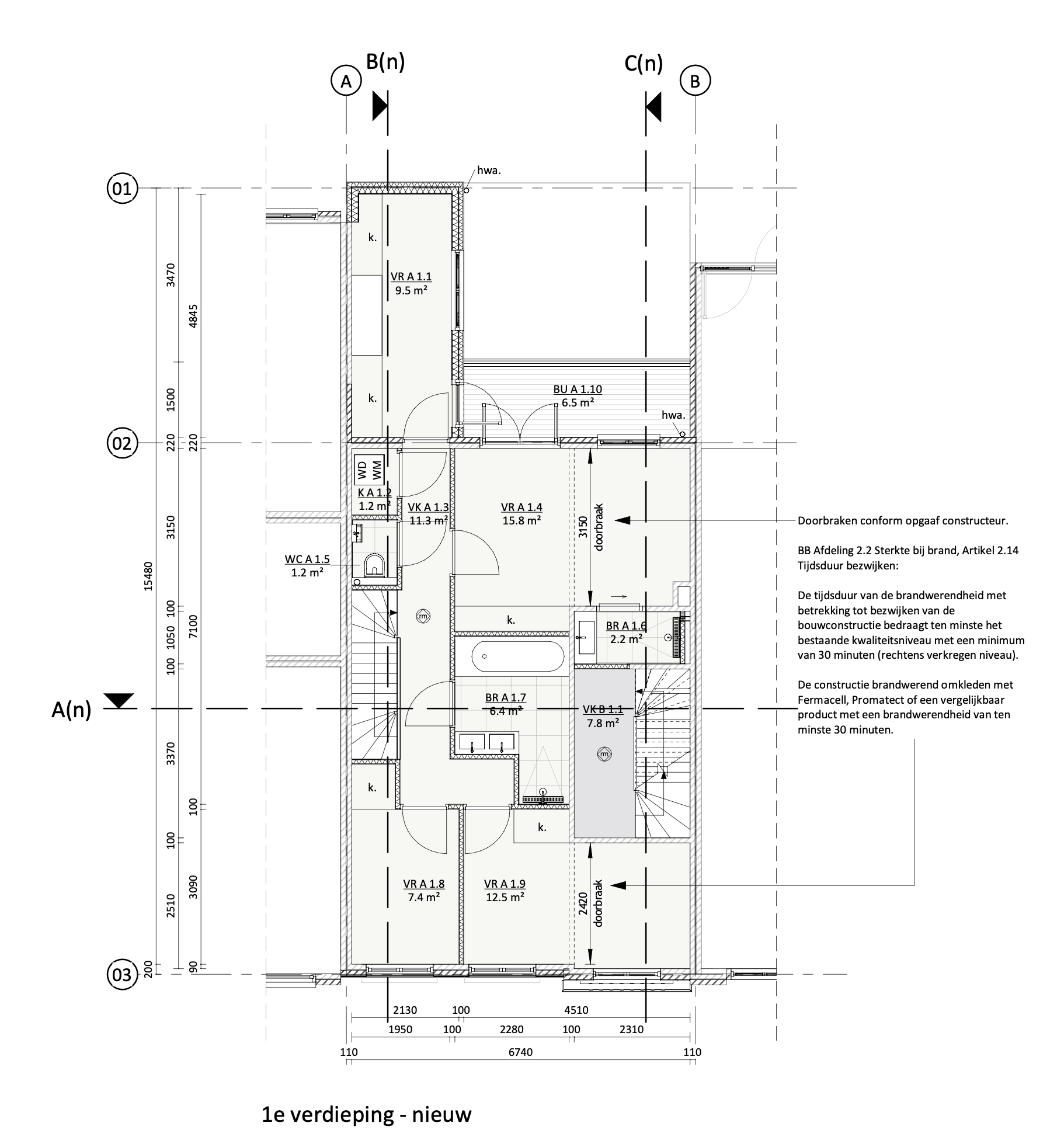
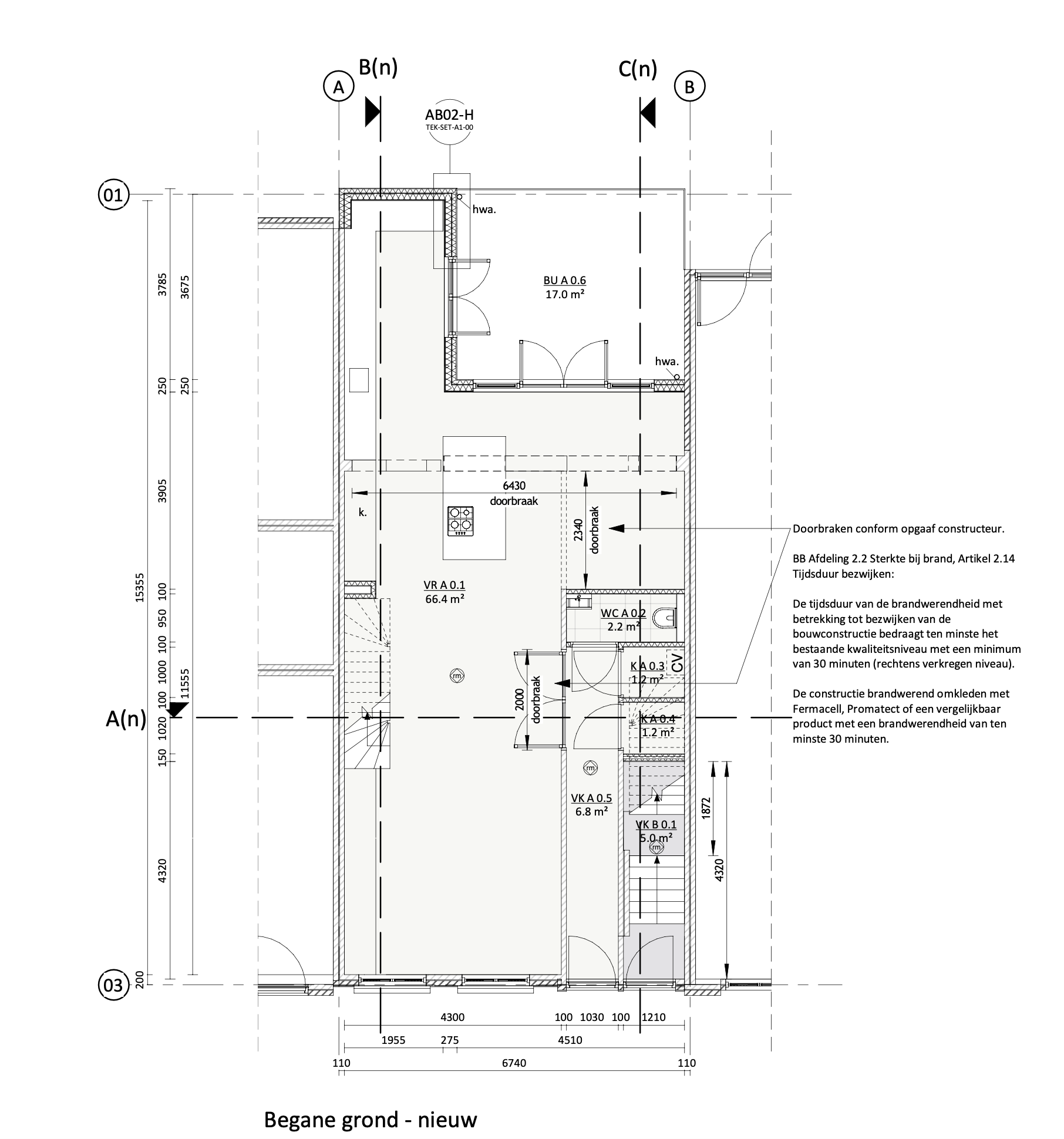
Een schitterende kans om twee woningen te ontwikkelen in dit statige pand uit 1890, gelegen in het voorname Willemspark. Door de gemeente is een vergunning verleend voor het creëren van twee ruime appartementen van respectievelijk 149,3 en 128,9 m² met mooie buitenruimtes. De volledige vergunning- en tekeningenset zijn op aanvraag beschikbaar via ons kantoor. Een bezichtiging op locatie is uiteraard ook mogelijk. Huidige situatie: Prinses Mariestraat 19: VERHUURD ; benedenhuis met tuin, woon-/eetkamer, half-open keuken, toilet, badkamer, 2 slaapkamers Prinses Mariestraat 17: LEEG EN ONVERHUURD ; 3-dubbel bovenhuis met woonkamer, eetkamer, 2 keukens, badkamer (mogelijkheid tot 2e badkamer), 2 aparte toiletten, diverse...
Langezaal Makelaars
Kenmerken
Overdracht
Bouw
Opervlakte en inhoud
Indeling
Energie
Enthousiast geworden?
Maak dan snel een afspraak voor een vrijblijvende bezichtiging van Prinses Mariestraat 17/ 19, Den Haag
Bezichtiging inplannen
Locatie



