Wassenaar
Schouwweg 13
€ 1.750 p.m
-
104 m²
Omschrijving
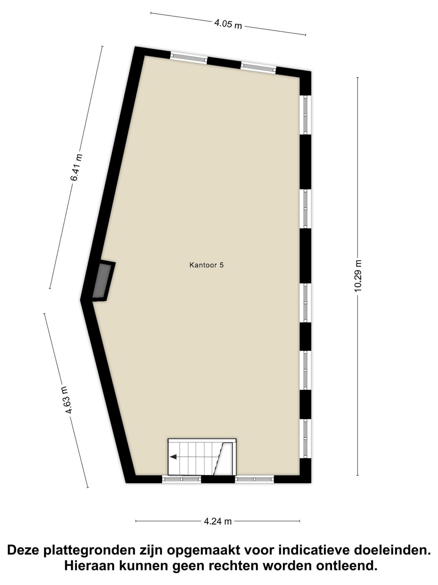
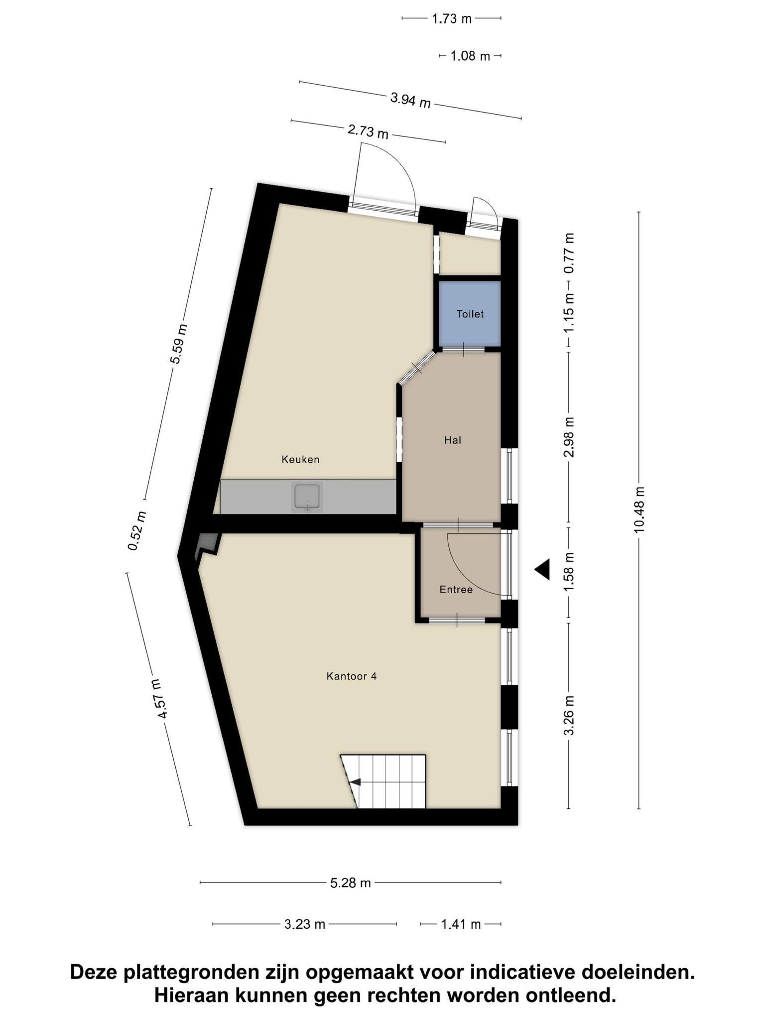
Deze zojuist gerenoveerd kantoorruimte heeft totaal ca. 104 m² verhuurbaar vloeroppervlak verdeeld over begane grond en 1e etage. Bij het gehuurde behoort tevens 1 parkeerplaats op aanliggend terrein en aan rechterzijde van het pand bevindt zich een ruime betegelde tuin. Eventueel ook in combinatie te huren met buurpand Schouwweg 13A. INDELING Totaal – ca. 104 m² vvo Begane grond: ca. 52 m² > entreehal, open kantoorkamer (#4), kantine/keuken en toilet; Eerste Etage: ca. 52 m² > kantoorverdieping (#5) LOCATIE & OMGEVING Woonwijk De kantoorruimte is gelegen in de woonwijk ‘Drie Papegaaien’ op korte afstand van het centrum van Wassenaar. Bereikbaarheid Het object is goed bereikbaar vanaf respectievelijk de Rijksweg...
Langezaal Makelaars
Kenmerken
Overdracht
Bouw
Opervlakte en inhoud
Indeling
Energie
Locatie




