Den Haag
Sibergstraat 29
€ 249.500 k.k
-
71 m²
-
Portiekflat
-
3 kamers
Omschrijving
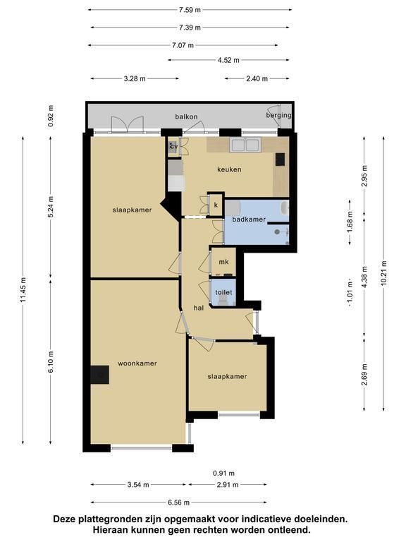
English version see below Steek jij de handen uit de mouwen om dit appartement helemaal naar eigen smaak te maken? Indeling: open 'Haags' portiek, via de entree op de eerste etage kom je bij de ruime hal met toegang tot alle ruimtes. Slaapkamer aan de voorzijde. Woonkamer. Slaapkamer aan de achterzijde met toegang tot het balkon. Keuken met tevens toegang tot het balkon. Balkon over gehele breedte van het appartement. Badkamer met douche, wastafel en wasmachine aansluiting. Apart toilet. In combinatie met de fijne buurt woon jij hier top! Het appartement is ideaal gelegen in de meest populaire straat van het...
Langezaal Makelaars
Kenmerken
Overdracht
Bouw
Opervlakte en inhoud
Indeling
Energie
Enthousiast geworden?
Maak dan snel een afspraak voor een vrijblijvende bezichtiging van Sibergstraat 29, Den Haag
Bezichtiging inplannen
Locatie



