Den Haag
Stuyvesantstraat 365
€ 1.250 p.m
-
71 m²
-
Portiekwoning
-
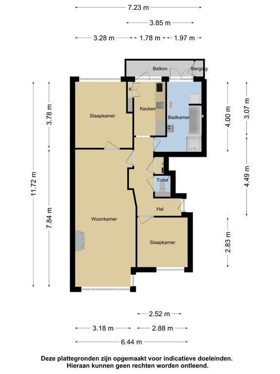
3 kamers
Omschrijving
English version see below In een van de leukste, recent vernieuwde straten van Bezuidenhout vind je dit gave 3-kamerappartement (2 slaapkamers). Het appartement ligt op de 1e etage en heeft alles om hier jouw thuis van te maken. Voldoende ruimte, een ruime badkamer en keuken, én een fijn balkon. De jaren '30 stijl met hoge plafonds, glas-in-lood in de slaapkamer en marmeren schouwen creeren hier één en al sfeer en gezelligheid. De nieuwe visgraat vloer maakt de warme sfeer af. Kom elke dag thuis met een grote glimlach en geniet van de centrale ligging! In combinatie met de fijne buurt woon jij...
Langezaal Makelaars
Kenmerken
Overdracht
Bouw
Opervlakte en inhoud
Indeling
Energie
Locatie




