Den Haag
Theresiastraat 109-A
€ 260.000 k.k
-
87 m²
-
Tussenverdieping
-
3 kamers
Omschrijving
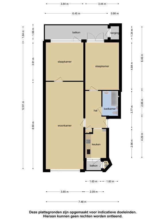
Handen uit de mouwen deze woning dient gemoderniseerd te worden! Ruim 3 kamer appartement op de 1e etage met groot zonnig balkon en eigen fietsenberging. Zeer centraal gelegen in het Bezuidenhout in het winkelgedeelte van de Theresiastraat. Centrum, Centraal Station, uitvalswegen en openbaar vervoer liggen op loopafstand en terrasjes, winkels en het Haagse Bos om de hoek! Indeling: Begane grond: Binnenkomst via gesloten portiek. Trap naar de 1e etage. 1e verdieping: Binnenkomst appartement. Ruime centrale hal, royale woon-/eetkamer met toegang tot het zonnig achterbalkon(ZO). Badkamer met ligbad/douche, wastafelmeubel, en toilet. Keuken gelegen aan de voorzijde met toegang tot het voorbalkon. Twee ruime achterslaapkamer met beide...
Langezaal Makelaars
Kenmerken
Overdracht
Bouw
Opervlakte en inhoud
Indeling
Energie
Enthousiast geworden?
Maak dan snel een afspraak voor een vrijblijvende bezichtiging van Theresiastraat 109-A, Den Haag
Bezichtiging inplannen
Locatie



