Den Haag
Theresiastraat 228
€ 1.250 p.m
-
85 m²
-
Portiekwoning
-
3 kamers
Omschrijving
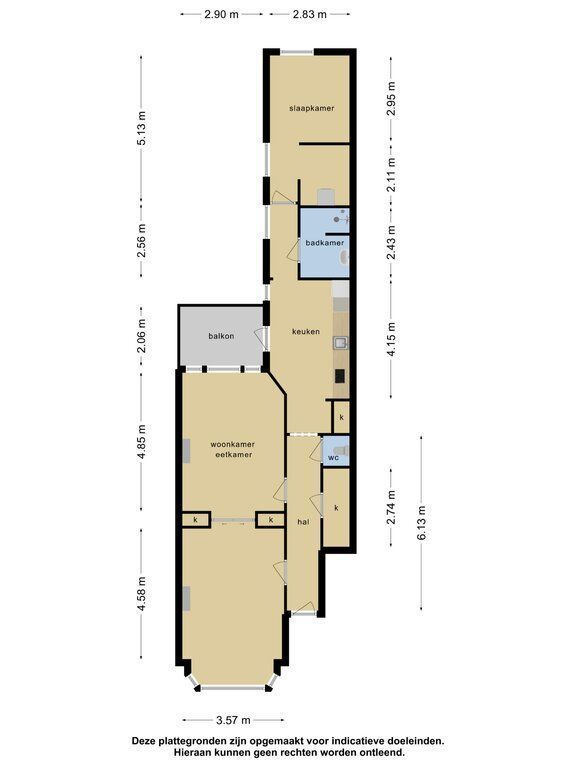
English version see below LUXE EN COMFORT! Ben jij liefhebber van de jaren '30 woonstijl maar dan in een nieuw jasje? Dan moet je echt even komen kijken naar dit superleuke 3-kamer appartement met luxueuze uitstraling! Dit appartement is van alle gemakken voorzien, zoals kunststof kozijnen en isolerende beglazing, een mooie lamelparket vloer, een luxe zwarte woonkeuken met inbouwapparatuur en een moderne badkamer. De woonkamer is gescheiden van de eetkamer door de originele ensuite schuifseparatie met inbouwkasten. Hier kun je ook gemakkelijk een 2e slaapkamer creeeren. Vanuit de keuken loop je zo het ruime terras op. De slaapkamer met inloopkast ligt in...
Langezaal Makelaars
Kenmerken
Overdracht
Bouw
Opervlakte en inhoud
Indeling
Energie
Locatie




