Den Haag
Van den Boschstraat 226
€ 369.500 k.k
-
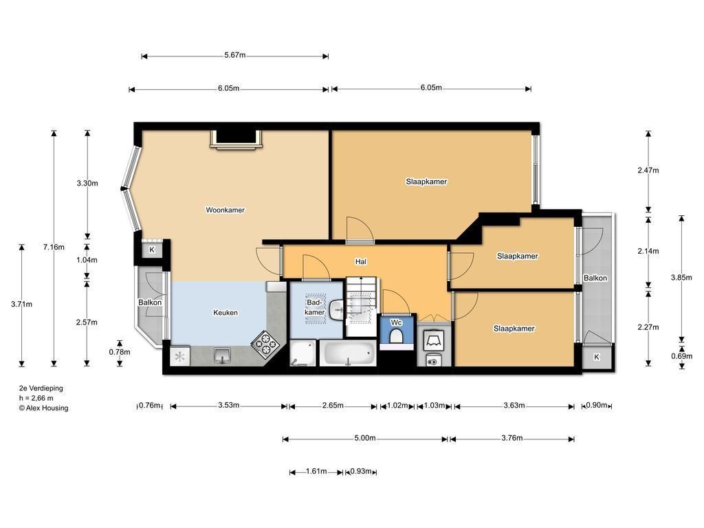
92 m²
-
Bovenwoning
-
4 kamers
Omschrijving
English version see below Op zoek naar een ruime, sfeervolle en lichte woning in de populaire wijk ‘Bezuidenhout’? Dan is dit top (2e etage) 4-kamer appartement van ca. 92m2 echt iets voor jou! De ruimte van dit luxe 4-kamer appartement is dankzij renovatie in 2017 extra benut. Zo kun je heerlijk genieten van een woonkamer met openhaard, ruime open keuken, 3 slaapkamers, 2 balkons, badkamer met whirlpool en inloopdouche, apart toilet, aparte wasruimte, veel bergruimte en geheel voorzien van dubbel glas. Kom snel een kijkje nemen en laat je verrassen! Deze ruim opgezette woning biedt veel wooncomfort en is gelegen in de populaire...
Langezaal Makelaars
Kenmerken
Overdracht
Bouw
Opervlakte en inhoud
Indeling
Energie
Enthousiast geworden?
Maak dan snel een afspraak voor een vrijblijvende bezichtiging van Van den Boschstraat 226, Den Haag
Bezichtiging inplannen
Locatie



