Den Haag
Van der Parrastraat 26
€ 275.000 k.k
-
62 m²
-
Portiekwoning
-
3 kamers
Omschrijving
English see below In het geliefde Bezuidenhout gelegen sfeervol 3-kamer appartement met behouden jaren '30 karakter. Het appartement heeft gezellige woon-/eetkamer met ensuite (glas in lood) en veel slimme bergruimte, een moderne keuken en badkamer (met ligbad), 1/2 slaapkamers en een leuk ingericht balkon op het noordwesten. Wonen in één van de meest gewilde wijken van Den Haag? Hier vind je de gezellige winkelstraat de Theresiastraat, welke in de volksmond ook wel bekend staat als “De Trees”. Een straat met vele winkels, leuke lunchrooms en heerlijke restaurants. Op 5 minuten fietsafstand van het bruisende centrum van Den Haag, om de hoek bij...
Langezaal Makelaars
Kenmerken
Overdracht
Bouw
Opervlakte en inhoud
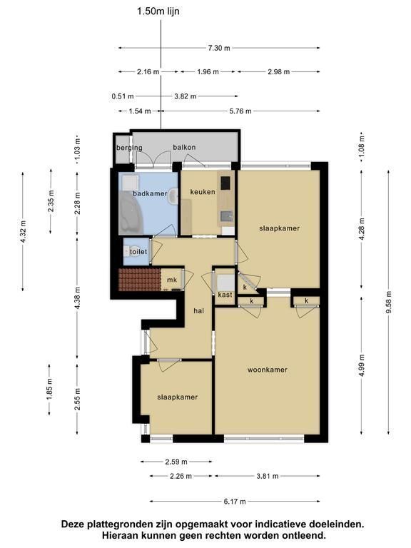
Indeling
Energie
Enthousiast geworden?
Maak dan snel een afspraak voor een vrijblijvende bezichtiging van Van der Parrastraat 26, Den Haag
Bezichtiging inplannen
Locatie



