Voorburg
van Faukenbergestraat 98
€ 369.500 k.k
-
125 m²
-
Bovenwoning
-
5 kamers
Omschrijving
Dit heerlijke en ruime 4-kamer appartement met maar liefst 2 balkons en een zolder is gelegen op een centrale locatie. De woning met goede lichtval beschikt over fantastische authentieke stijldetails zoals de originele schuifseparatie met glas-in-lood deuren, paneeldeuren met glas-in-lood bovenlichten. De wijk Voorburg Noord wordt steeds gezelliger door de aanwezige koffiecorners en eetgelegenheden ook de diverse winkelvoorzieningen nabij zoals a.o. ‘Julianabaan’ in Voorburg, Theresiastraat in Den haag en het nieuwe Westfield Shopping Mall in Leidschendam. Reist u veel met het openbaar vervoer dan is station Laan van NOI op enkele minuten loopafstand bereikbaar alsmede meerdere bus- en tramverbindingen. Liever met...
Langezaal Makelaars
Kenmerken
Overdracht
Bouw
Opervlakte en inhoud
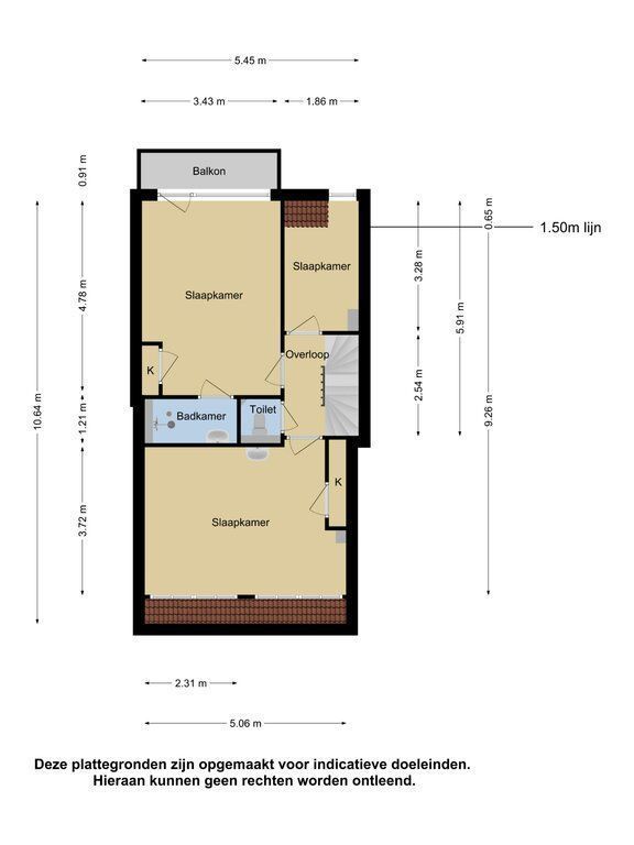
Indeling
Energie
Enthousiast geworden?
Maak dan snel een afspraak voor een vrijblijvende bezichtiging van van Faukenbergestraat 98, Voorburg
Bezichtiging inplannen
Locatie



