Den Haag
Van Reesstraat 69
€ 325.000 k.k
-
89 m²
-
Tussenverdieping
-
4 kamers
Omschrijving
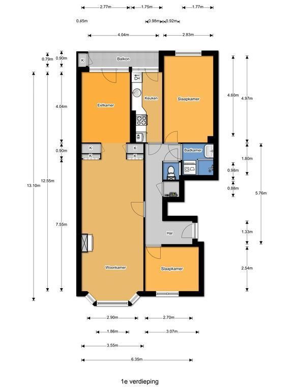
Heerlijk ruim en licht 4-kamerappartement op de eerste verdieping met zonnig balkon op het zuiden! Laat je verassen door de ruime en praktische indeling, veel bergruimte en de prachtige glas-in-lood ramen door de gehele woning. Het appartement is ideaal gelegen in het super populaire en groene stukje van Bezuidenhout, op loopafstand van de gezellige Theresiastraat met haar diversiteit aan winkels en restaurants én het Haagse Bos. Wil je genieten van het centrum, dan sta je binnen ca. 10 minuten fietsen in de Haagse binnenstad. Ook het strand van Scheveningen is per fiets of openbaar vervoer snel te bereiken. Liever de...
Langezaal Makelaars
Kenmerken
Overdracht
Bouw
Opervlakte en inhoud
Indeling
Energie
Enthousiast geworden?
Maak dan snel een afspraak voor een vrijblijvende bezichtiging van Van Reesstraat 69, Den Haag
Bezichtiging inplannen
Locatie



