Den Haag
Van Speijkstraat 108A
€ 575.000 k.k
-
119 m²
-
Bovenwoning
-
4 kamers
Omschrijving
Alles in één! Woon en geniet in dit ruime 4/5-kamer dubbel bovenhuis (van ca. 120m!) op de tweede en derde verdieping in de populaire wijk "Zeeheldenkwartier". Het heeft een royale woon-/eetkamer, fantastische en uitzonderlijk lichte open (woon)keuken met openslaande deuren naar het heerlijke zonneterras gelegen op Zuid/Oost. Dit is echt een plek waar waar koken en gezelligheid perfect samen komen. De slaapkamers zijn ruim en karakteristiek en voorzien van een mooie inbouw garderobekast. En in de badkamer met bad, inloopdouche wastafel en handdoekradiator waan je je in een echte spa! Het appartement is gelegen in een van de meest populaire wijken van...
Langezaal Makelaars
Kenmerken
Overdracht
Bouw
Opervlakte en inhoud
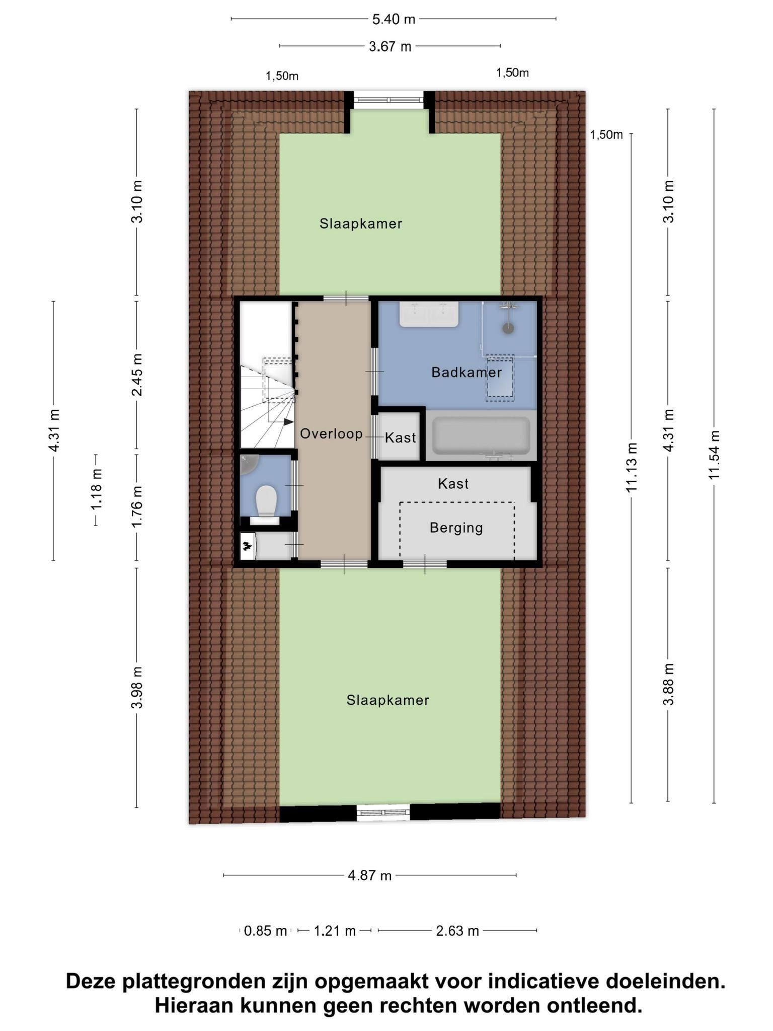
Indeling
Energie
Enthousiast geworden?
Maak dan snel een afspraak voor een vrijblijvende bezichtiging van Van Speijkstraat 108A, Den Haag
Bezichtiging inplannen
Locatie



