Den Haag
Westerbaenstraat 212
€ 225.000 k.k
-
50 m²
-
Galerijflat
-
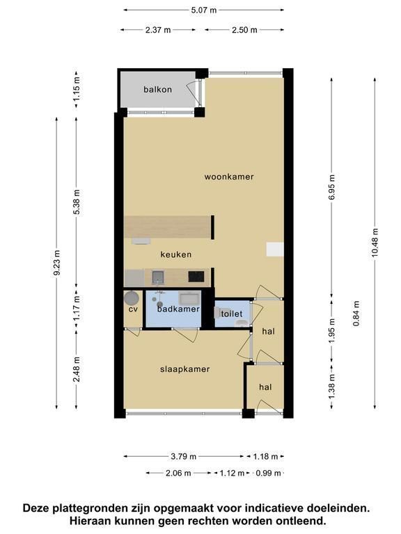
2 kamers
Omschrijving
English version below Starters opgelet! Wil jij wonen op een toplocatie! Dat kan in dit lichte 2-kamerappartement, gelegen in de centrale wijk Zeeheldenkwartier op een steenworp afstand van het centrum van Den Haag. Een café latte in de ochtendzon op dat gezellige terras, borrelen met vrienden in één van de kroegen om de hoek of heerlijk picknicken in de Paleistuin. Wonen in het Zeeheldenkwartier betekent optimaal genieten van het stadse leven. In de directe omgeving vind je diverse restaurantjes, winkels en salons. De woning is gelegen op loopafstand van de gezellige Piet Heinstraat en Prins Hendrikstraat Daarnaast is de woning gunstig gelegen...
Langezaal Makelaars
Kenmerken
Overdracht
Bouw
Opervlakte en inhoud
Indeling
Energie
Enthousiast geworden?
Maak dan snel een afspraak voor een vrijblijvende bezichtiging van Westerbaenstraat 212, Den Haag
Bezichtiging inplannen
Locatie



