Den Haag
Weteringplein 6
€ 1.750 p.m
-
141 m²
-
Beneden plus bovenwoning
-
5 kamers
Omschrijving
English version see below Op zoek naar een CENTRAAL gelegen woning midden in de upcoming "Rivierenbuurt" waar ook genoeg RUST en RUIMTE te vinden zijn? Dan is deze PRACHTIGE en KARAKTERISTIEKE 3-laagse 5-kamer woning mét heerlijk groene achtertuin precies de juiste match! Deze statige woning uit 1910 heeft een zeer ruime woon-/eetkamer ensuite met originele hoge plafonds (> 3m), schouwen, suitekasten en een zeer fraaie eiken parketvloer. Het biedt tevens toegang tot de romantische, groene achtertuin gelegen op het zuidwesten. De tussengelegen woonkeuken met veel daglichtinval is voorzien van vloerverwarming en de nodige (inbouw)apparatuur, en biedt voldoende plek om te borrelen of...
Langezaal Makelaars
Kenmerken
Overdracht
Bouw
Opervlakte en inhoud
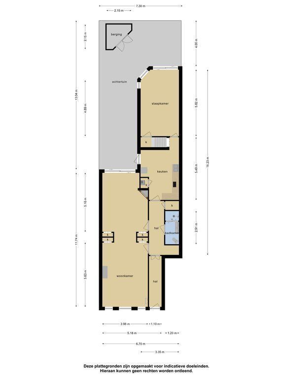
Indeling
Energie
Locatie




