Den Haag
Willem van Outhoornstraat 42
€ 700.000 k.k
-
238 m²
-
Bovenwoning
-
7 kamers
Omschrijving
Een gigantische woning met eindeloze mogelijkheden! Op zoek naar een bijzondere bovenwoning waar ruimte en wooncomfort perfect samenkomen? Deze royale, drielaagse bovenwoning in het populaire Bezuidenhout biedt volop mogelijkheden voor het hele gezin. De woning is gelegen in Bezuidenhout. Bezuidenhout is een populaire, rustige en groene wijk in Den Haag, bekend om zijn charmante straten, afwisselende architectuur en een prettige mix van gezinnen en professionals. Wonen nabij de Theresiastraat betekent alle dagelijkse voorzieningen zoals winkels, scholen en gezellige horecagelegenheden binnen handbereik te hebben. Dankzij de uitstekende verbindingen met openbaar vervoer en de nabijheid van uitvalswegen zoals de A12, A4 en A44...
Langezaal Makelaars
Kenmerken
Overdracht
Bouw
Opervlakte en inhoud
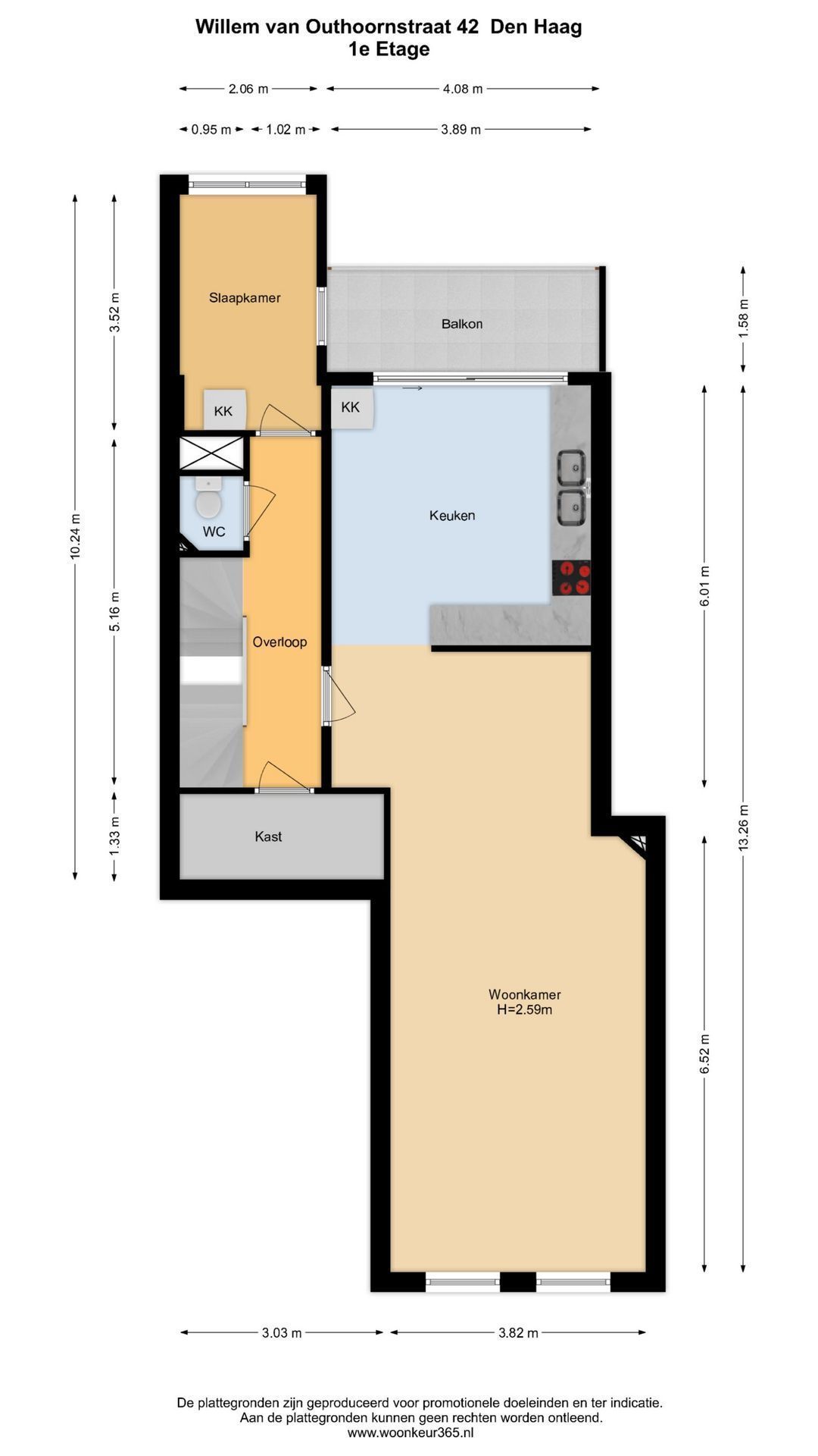
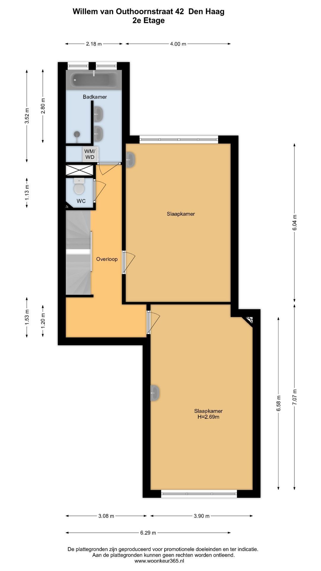
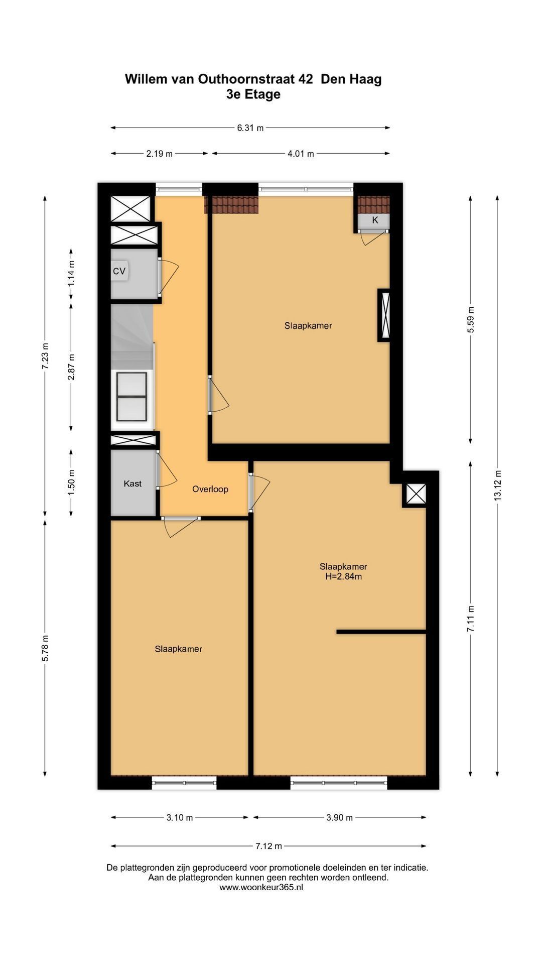
Indeling
Energie
Enthousiast geworden?
Maak dan snel een afspraak voor een vrijblijvende bezichtiging van Willem van Outhoornstraat 42, Den Haag
Bezichtiging inplannen
Locatie



