Den Haag
Zeekant 104R
€ 395.000 k.k
-
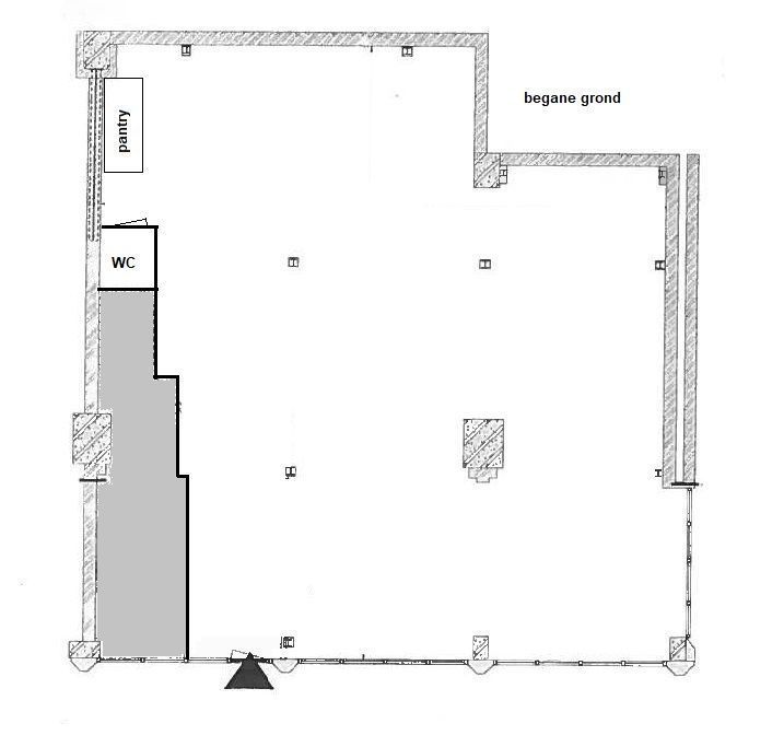
235 m²
Omschrijving
HORECARUIMTE TE KOOP IN VERHUURDE STAAT Vraagprijs € 395.000,- k.k. Zeekant 104 R 2586 JJ DEN HAAG Het betreft een appartementsrecht met horeca-bestemming ter grootte van ca. 235 m² v.v.o horecaruimte met buitenterras van ca. 65 m². Het object is sinds 2010 in gebruik als Snooker-/Poolbar “Zeekantje” en is gelegen vlak achter de recent gerenoveerd boulevard van Scheveningen. - Huuropbrengst: ca. € 19.097,28 ex. BTW per jaar; - Markthuur € 33.000,- per jaar volgens huurwaardetaxatie november 2018; - Huurder(s): E.H. Hinfelaar en F. Rademaker; - Huurovereenkomst: 1 jaar te verlengen met telkens 1 jaar, ingaande 1 juni, thans lopende tot en met 31-05-2021; - Huurindexering: jaarlijks; - Opzegtermijn: 6 maanden; - Energievoorzieningen voor eigen rekening huurder; - Bijdrage VVE:...
Langezaal Makelaars
Kenmerken
Overdracht
Bouw
Opervlakte en inhoud
Indeling
Energie
Enthousiast geworden?
Maak dan snel een afspraak voor een vrijblijvende bezichtiging van Zeekant 104R, Den Haag
Bezichtiging inplannen
Locatie
